Fremtidens familiebolig

Bygningsudvikling og Arkitektur

Udvikling af arkitektur i bygninger på bygningsniveau

Krarup Hansen & Co. er en lokal tegnestue i Helsingør og Nordsjælland som yder rådgivning i alle byggeriets faser. Udvikling af bæredygtig arkitektur er vores kerneområde, hvor vi arbejder med fokus på funktionalitet og æstetik i hver enkel sag fra ide’ til færdigt byggeri, der integreres i det eksisterende bymiljø med minimal CO₂ udledning under byggeriet og efterfølgende bygningsdrift.

Bygningsudvikling med udgangspunkt i bygninger for mennesker, som opfylder bygherrens behov og vision til et færdigt produkt med høje kvalitetsstandarder der holder i mange år som kan patinere med tiden.

Vores byggeri opføres i tæt samarbejde med bygherre, håndværker og leverandører.

Bygninger med god arkitektur

Bygninger med god arkitektur som vil skabe værdi for bygherren og samfundet, herunder byggeri der tiltrækker mennesker og bidrager til fællesskab i udsøgte naturlige materialer, og der anvendes bygningskonstruktioner og materialer der kan patinere smukt.

Nybyggeri

Tegnestuen arbejder med bygningsudvikling af nye bygninger i bymæssige sammenhænge eller med bygninger, der er beliggende som individuelle bygninger i det åbne landskab.

Bygninger udvikles til det særlige sted, som den byggegrund, bygherren ønsker bebygget. En bygning tilpasses de ønskede funktioner, bygningsanlægget og bygningsformen tilpasses de byplanmæssige forudsætninger samt den natur og det landskab, som et byggeri skal indpasses i. Således bliver byggeriet bæredygtigt i forhold til udformning, menneskelige og sociale relationer og med en optimal økonomi for bygherren.

Arkitektur i praksis
Arkitektur og design
Fremtidens familiebolig

Vi søger altid at opnå den bedste arkitektur fra vores tid i en moderne og tidsløs udgave med optimal funktionalitet. Vores projekter omfatter boliger, boligbebyggelser, erhvervsbyggeri, kultur og institutioner, der kan opføres og stå i mange generationer.

Nybyggeri

Vi udvikler nye bygninger fra grunden med fokus på moderne arkitektur, funktionalitet og bæredygtighed. Vores projekter omfatter boliger, erhvervsbyggeri og institutioner, der er designet til at stå i generationer.

Rosenkildevej 4 - Billede 1
Rosenkildevej 4 - Billede 2
Rosenkildevej 4 - Billede 3
Rosenkildevej 4 - Billede 4
Rosenkildevej 4 - Billede 5
Rosenkildevej 4 - Billede 6
Rosenkildevej 4 - Billede 7
Rosenkildevej 4 - Billede 8
Se projekt
Teglværksbakken i Ålsgårde - Billede 1
Teglværksbakken i Ålsgårde - Billede 2
Teglværksbakken i Ålsgårde - Billede 3
Teglværksbakken i Ålsgårde - Billede 4
Teglværksbakken i Ålsgårde - Billede 5
Teglværksbakken i Ålsgårde - Billede 6
Teglværksbakken i Ålsgårde - Billede 7
Teglværksbakken i Ålsgårde - Billede 8
Teglværksbakken i Ålsgårde - Billede 9
Teglværksbakken i Ålsgårde - Billede 10
Se projekt

Transformering

Vi transformerer eksisterende bygninger til nye formål med fokus på bevarelse af bygningens karakter og værdi. Vores projekter omfatter ombygning af butikker til boliger, industrilokaler til kontorer og anden kreativ omdannelse af eksisterende strukturer.

Krudttårnsbakken i Frederiksværk

Krudttårnsbakken i Frederiksværk. Udvikling og projektering af privat boligbebyggelse, udført i perioden 2003 – 2009, Etape 1. opført og ibrugtaget i 2003.

Krudttårnsbakken i Frederiksværk - Billede 1
Krudttårnsbakken i Frederiksværk - Billede 2
Krudttårnsbakken i Frederiksværk - Billede 3
Krudttårnsbakken i Frederiksværk - Billede 4
Krudttårnsbakken i Frederiksværk - Billede 5
Krudttårnsbakken i Frederiksværk - Billede 6
Krudttårnsbakken i Frederiksværk - Billede 7
Krudttårnsbakken i Frederiksværk - Billede 8
Krudttårnsbakken i Frederiksværk - Billede 9
Krudttårnsbakken i Frederiksværk - Billede 10
Se projekt
Små, billige og fleksible almene boliger i Helsingør - Billede 1
Små, billige og fleksible almene boliger i Helsingør - Billede 2
Små, billige og fleksible almene boliger i Helsingør - Billede 3
Små, billige og fleksible almene boliger i Helsingør - Billede 4
Små, billige og fleksible almene boliger i Helsingør - Billede 5
Små, billige og fleksible almene boliger i Helsingør - Billede 6
Små, billige og fleksible almene boliger i Helsingør - Billede 7
Små, billige og fleksible almene boliger i Helsingør - Billede 8
Små, billige og fleksible almene boliger i Helsingør - Billede 9
Små, billige og fleksible almene boliger i Helsingør - Billede 10
Små, billige og fleksible almene boliger i Helsingør - Billede 11
Se projekt

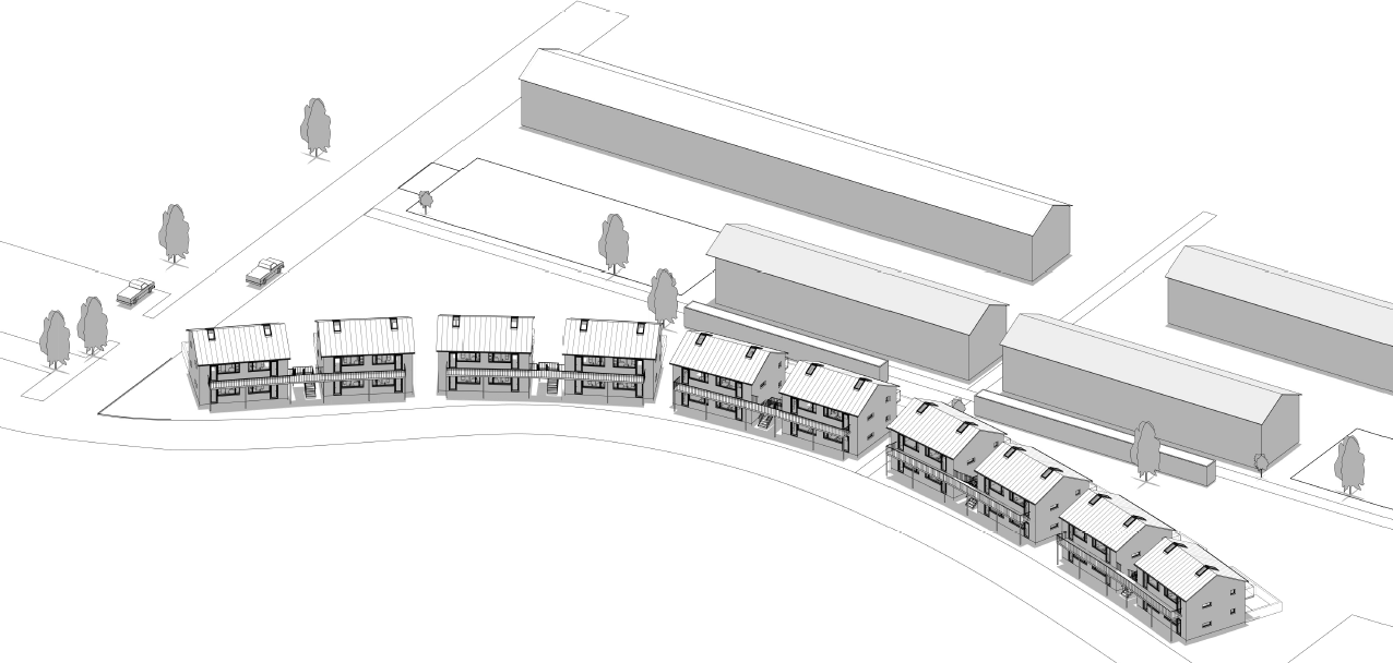
Små, billige og fleksible almene boliger i Helsingør

Forslag til små, billige og fleksible almene boliger i Helsingør, designet til at passe ind i restarealer, særligt i forbindelse med eksisterende almene boligbebyggelser. Udvikling og planlægning fra 2016.

Rønnedalen i Helsingør

Rønnedalen i Helsingør. Udvikling og transformering af almen boligbebyggelse med ideoplæg, projektforslag til nye boliger indpasset i gammel bebyggelse, udvikling og projektering i perioden 2015 – 2018.

Rønnedalen i Helsingør - Billede 1
Rønnedalen i Helsingør - Billede 2
Rønnedalen i Helsingør - Billede 3
Rønnedalen i Helsingør - Billede 4
Rønnedalen i Helsingør - Billede 5
Se projekt
Familieboliger i Espergærde - Billede 1
Familieboliger i Espergærde - Billede 2
Familieboliger i Espergærde - Billede 3
Familieboliger i Espegærde - Billede 4
Familieboliger i Espergærde - Billede 5
Familieboliger i Espergærde - Billede 6
Familieboliger i Espegærde - Billede 7
Familieboliger i Espegærde - Billede 8
Familieboliger i Espergærde - Billede 9

Familieboliger i Espergærde

Udvikling og design af en familie og flere familieboliger med og uden erhvervsfunktioner, aktuel sag i Espergærde området i 2017. Familieboliger med erhverv, og familieboliger med erhverv i underetagen.

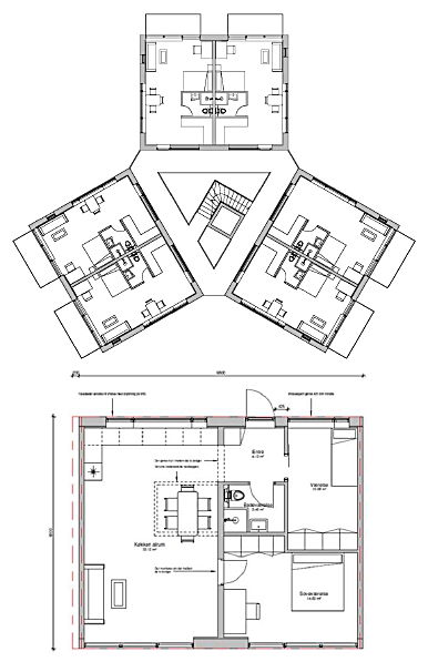
Enfamiliehuse og klyngehuse

Udvikling af enfamiliehuse, klyngehuse mv. Udvikling i forhold til bæredygtigt byggeri med blandt andet passiv energi og miljø. Intentionen med projektet har været at skabe en klyngehusbebyggelse som er tilegnet senior generationen som kommer fra et langt liv i et parcelhus. Vi har taget det bedste med fra parcelhuset og tilført bebyggelsen muligheden for fællesskab, uden at den enkelte behøver at være presset til det.

Enfamiliehuse og klyngehuse - Billede 1
Enfamiliehuse og klyngehuse - Billede 2
Enfamiliehuse og klyngehuse - Billede 3
Enfamiliehuse og klyngehuse - Billede 4